VSSJAF(C2F)型雙法蘭傳力接頭
VSSJAF(C2F)型雙法蘭傳力接頭功能介紹:雙法蘭傳力接頭是在法蘭松套補償接頭的基礎上增設法蘭短管及傳力螺桿而成,次類型的補償接頭與松套補償接頭和松套限位補償接頭不同的是它的補償量是指在安裝及拆卸過程中的調節…
鞏義市新躍供水材料有限公司專業生產各種閥門配套的雙法蘭限位伸縮器、雙法蘭傳力接頭等,型號齊全,質量保證,支持來圖定制。
(1)VSSJAF(C2F)型雙法蘭傳力接頭均按國標要求加工制作,部分口徑備有現貨,具體咨詢客服QQ:2172152931或者添加微信13140182505
(2)隨貨發檢驗報告、合格證等資料。
(3)承接各種大型工程,如:【中國水利水電第十一工程局有限公司安裝分局武漢泵站DN2800\DN3200柔性、剛性防水套管;蘭州市政建設集團有限責任公司;合肥地鐵2號線;江蘇江都建設集團有限公司;陜西華海水利工程有限公司;新疆和山巨力化工有限公司;北京興順康蘭工程機械有限公司等等】
(4)產品型號過多,價格無法一一注明,下單前請咨詢旺旺或者電話:13140182505

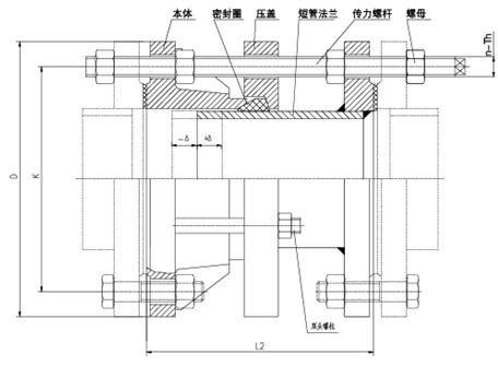
以下圖片均為新躍供水廠家實景實地拍攝,盜圖必究······


功能介紹:
雙法蘭傳力接頭是在法蘭松套補償接頭的基礎上增設法蘭短管及傳力螺桿而成,次類型的補償接頭與松套補償接頭和松套限位補償接頭不同的是它的補償量是指在安裝及拆卸過程中的調節量,一旦將所有的螺母擰緊,它是剛性連接的,可以傳遞軸心力,從而保護閥門、泵等設備。
適用范圍:
C2F/VSSJAF型雙法蘭傳力接頭適用于輸送海水、淡水、冷熱水、飲用水、生活污水、原油、燃油、潤滑油、成品油、空氣、煤氣、溫度不高于250度的蒸汽和顆粒粉狀等介質。
安裝簡要說明:
C2F/VSSJAF型雙法蘭傳力接頭適用于兩邊均與法蘭連接的管道中,安裝時調整產品兩端與法蘭的安裝長度,對角依次均勻擰緊壓螺栓,使其成為一個整體,并有一定的位移量,方便安裝維修時,根據現場尺寸進行調整在工作時,可以把軸向推力傳遞至整個管道。

| 公稱通徑 DN | 管子外徑 Dw | 法蘭連接尺寸 | 總長 L | 安裝尺寸L1 | 伸縮量 | 重量/kg | ||||
| 法蘭外徑D | 螺栓孔中心 圓直徑D1 | 螺栓孔 | ||||||||
| n/個 | do | min | max | |||||||
| 65 | 76 | 185 | 145 | 4 | 18 | 330 | 220 | 180 | 40 | 13.1 |
| 80 | 89 | 200 | 160 | 8 | 15.0 | |||||
| 100 | 114 | 220 | 180 | 20.7 | ||||||
| 125 | 140 | 250 | 210 | 26.4 | ||||||
| 150 | 168 | 285 | 240 | 22 | 340 | 33.8 | ||||
| 200 | 219 | 340 | 295 | 41.0 | ||||||
| 250 | 273 | 395 | 350 | 12 | 55.1 | |||||
| 300 | 325 | 445 | 400 | 370 | 445 | 195 | 50 | 68.3 | ||
| 350 | 377 | 505 | 460 | 16 | 88.1 | |||||
| 400 | 426 | 565 | 515 | 26 | 380 | 101.3 | ||||
| 450 | 480 | 615 | 565 | 115.7 | ||||||
| 500 | 530 | 670 | 620 | 20 | 136.9 | |||||
| 600 | 630 | 780 | 725 | 30 | 420 | 465 | 215 | 188.7 | ||
| 700 | 720 | 895 | 840 | 24 | 232.1 | |||||
| 800 | 820 | 1O15 | 950 | 33 | 560 | 380 | 320 | 60 | 384.6 | |
| 900 | 920 | 1115 | 1050 | 28 | 422.9 | |||||
| 1000 | 1020 | 1230 | 1160 | 36 | 487.6 | |||||
VSSJAF(C2F)型雙法蘭傳力接頭
可拆式傳力接頭裝配中,準備發貨!
橡膠接頭 撓性橡膠接頭…
橡膠接頭、卡箍橡膠接頭、大翻邊橡膠接頭新躍橡膠接頭廠家,專業生產,量大從優!

不銹鋼雙法蘭限位伸縮…
不銹鋼雙法蘭伸縮接頭是由本體、密封圈、壓蓋、伸縮短管等主要部件組成。在松套伸縮接頭原有性能的基礎上增設限位裝置,在最大伸縮量處用雙螺母鎖定。管道在允許的伸縮量中可以自由伸縮,一旦超…

可曲撓橡膠接頭
可曲撓橡膠接頭簡介可曲撓橡膠接頭又叫做橡膠管軟接頭、柔性橡膠接頭、橡膠軟接頭、橡膠接頭、高壓橡膠接頭、橡膠減震器、補償器等。按連接方式分松套法蘭式、固定法蘭式和螺紋式3種;按結構可分…

人防穿線密閉套管
穿線密閉套管說明:1、當迎水面為腐蝕性介質時,可采用封堵材料將縫隙封堵;2.套管穿墻處如遇非混凝土墻壁時,應局部改用混凝土墻壁,其澆注范圍應比翼環直徑(DS)大200,并且必須將套管一次澆固…






![{sdcms[webname]} {sdcms[webname]}](/skins/2009/dw/images/foot_logo.png)
微信